Zero Apartment
data | luogo | tipologia | cliente |
|---|---|---|---|
2022 | Genova | Appartamento | Privato |

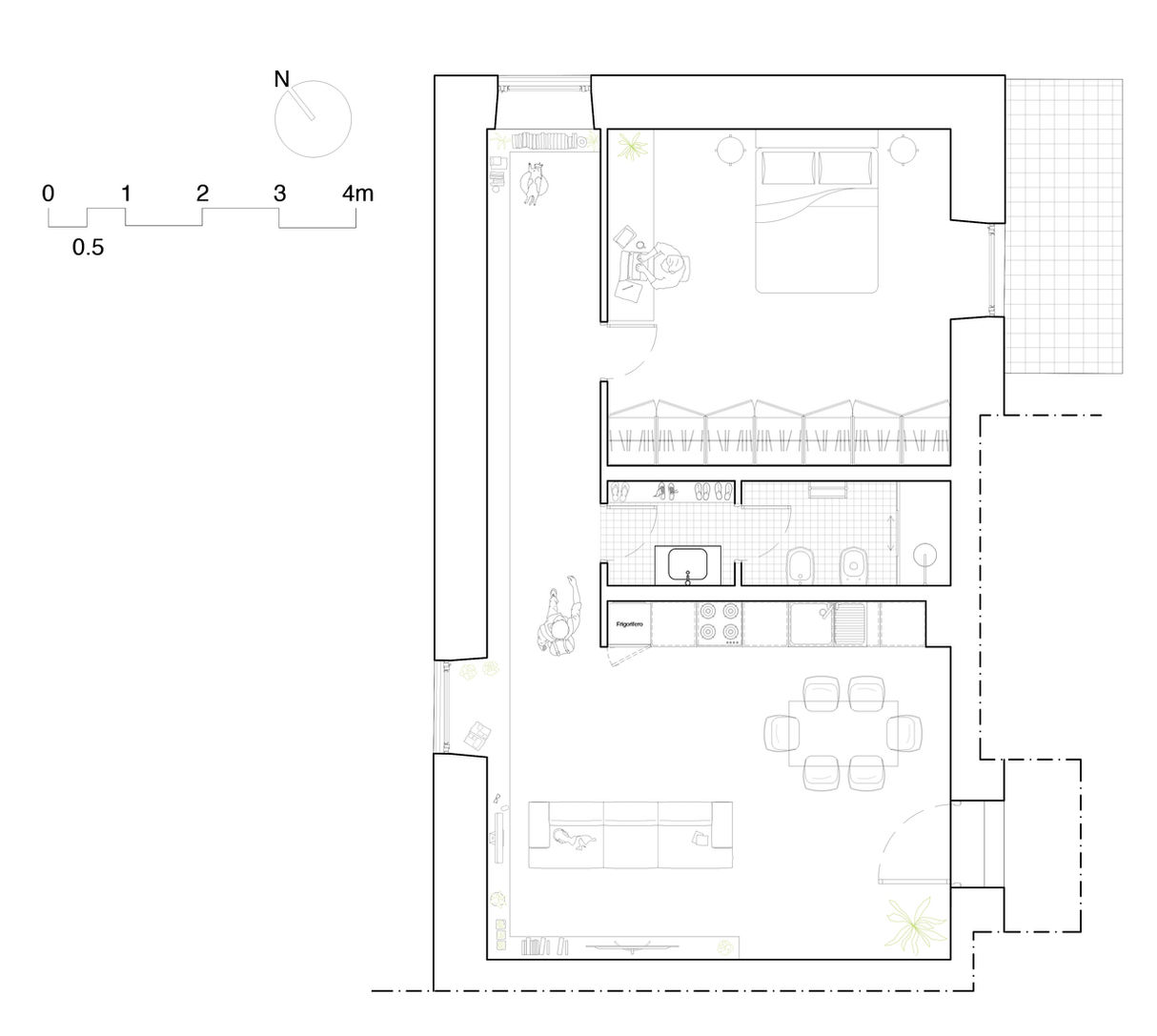
Il progetto di “Zero Apartment”, nel centro storico di Genova, è stato concepito con l'obiettivo di creare un spazio elegante e funzionale.
Attraverso la demolizione di alcune pareti, è stata ricavata la zona living che si estende con eleganza lungo l’ex corridoio. Lo spazio distributivo, infatti, assume ora una doppia funzione di libreria lineare e zona di convivialità.
Questa scelta architettonica favorisce un senso di connessione anche grazie all'arredo su misura che caratterizza l'intera parete.
Il colore predominante è il bianco, che esalta la luminosità dell’ambiente, facendolo apparire più grande, mentre le finiture in legno chiaro della cucina a vista e di alcuni mobili donano calore e accoglienza.
Lo stile moderno della casa è stato accentuato dalla scelta di corpi illuminanti di design che caratterizzano soffitti e pareti di tutto l’appartamento.
CREDITI
bump
/



